

LUC-63高精度濾油機特點
本濾油機包括一個由電機驅動的專用齒輪泵,具有噪音低、自吸能力強,運轉平穩等特點。
高壓管路設有溢流保護裝置,可有效保護液壓系統的安全。
采用熱繼電器保護,防止電機過載所造成的電機損壞。
吸油口粗過濾器保護油泵并延長主過濾器的使用壽命。
精過濾器可根據用戶的不同需要,選擇不同的精度,達到所需要的結果。
濾油器殼體采用快開結構,不需要任何工具便能迅速快捷地打開上蓋,更換濾芯。面板上裝有壓力表,在工作時連續指示出系統的運行狀況和濾芯的污染程度。
LUC-63高精度濾油機的應用
●液壓潤滑系統加油時的過濾
●液壓潤滑系統工作時的旁路過濾
●液壓潤滑系統投入運行前的循環過濾
●液壓潤滑系統的油不經設備本身的泵過濾泵出
(注:本機不適用燃油等易燃易爆的介質)
LUC-63高精度濾油機技術參數
尺寸:960*560*400
壓力:額定壓力0.4MPa
流量:40L/min
介質:≯160mm/s(20℃)
精度:30μm
額定功率:1.1KW
電源電壓:三相380V
頻率:50HZ
工作溫度:≤1000C
LUC-63高精度濾油機液壓原理圖

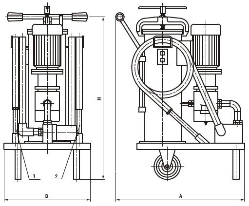
5.LUC-63高精度濾油機外形圖

| 型號 | 流量 | 粗精度 | 精濾 | 壓差 | 吸力 | 功率 | 電壓 | 重量 |
| LUC-16 | 16 | 100um | 3-30um | 0.02 | 2 | 0.37 | AC380v | 60 |
| LUC-40 | 40 | 0.75 | 90 | |||||
| LUC-63 | 63 | 1.1 | 100 | |||||
| LUC-100 | 100 | 1.5 | 110 |
| 常見故障 | 原 因 | 排除措施 |
|
輸出油口排出不暢 |
濾芯污染嚴重 排出油口位置高于10米 油路堵塞 漏氣 |
清洗或更換濾芯 降低排出口的高度 清理管路 修補漏氣處 |
| 輸出油口不排出 |
進油口沒有放入或完全放入油液內 進油口吸入了較大障礙物 吸油口的位置低于2米 吸油開關關閉 電機反轉 |
將進油管沉入油液里 排除障礙物 提高吸油管口的位置 打開吸油開關 調整電源相序 |
| 電機停轉 | 進油口吸入較大礙物造成過載,自動跳閘 | 檢查吸油口,清除障礙物 |
| 磁力啟動器熱繼電保護 | 按下磁力啟動器恢復按鈕 | |
| 油溫過高 | 長時間過濾器循環或散熱不良 | 停車降溫 |
| 濾芯污染嚴重 | 更換濾芯 | |
| 噪音過大 |
管路堵塞 濾芯受堵 吸油高度過高 系統內有空氣 |
清理管路 清理更換濾芯 降低吸油高度 微松精濾器螺塞排氣 |


Copyright ? 2010-2019 新鄉市華豫濾器有限公司版權所有
豫ICP備10014951號-5
豫公網安備 41071102000484號
聲明:版權歸華豫濾器所有 本網站版面及內容未經書面授權禁止轉載與鏡像